Loading...
Hamilton May Logo Hamilton May

Сучасна вілла на пляжі Багри

«Гамільтон Мей» радий представити рідкісну можливість придбати розкішну віллу , розташовану на першій лінії пляжу Багри .

Опис нерухомості

Ця унікальна резиденція вирізняється сучасним дизайном, що поєднує мінімалістичні бетонні стіни та стелі з вражаючим склінням, яке пропускає багато природного світла. Будівля була спроектована з урахуванням гнучкого дизайну інтер'єру, що дозволяє вільно адаптувати простір до індивідуальних потреб.

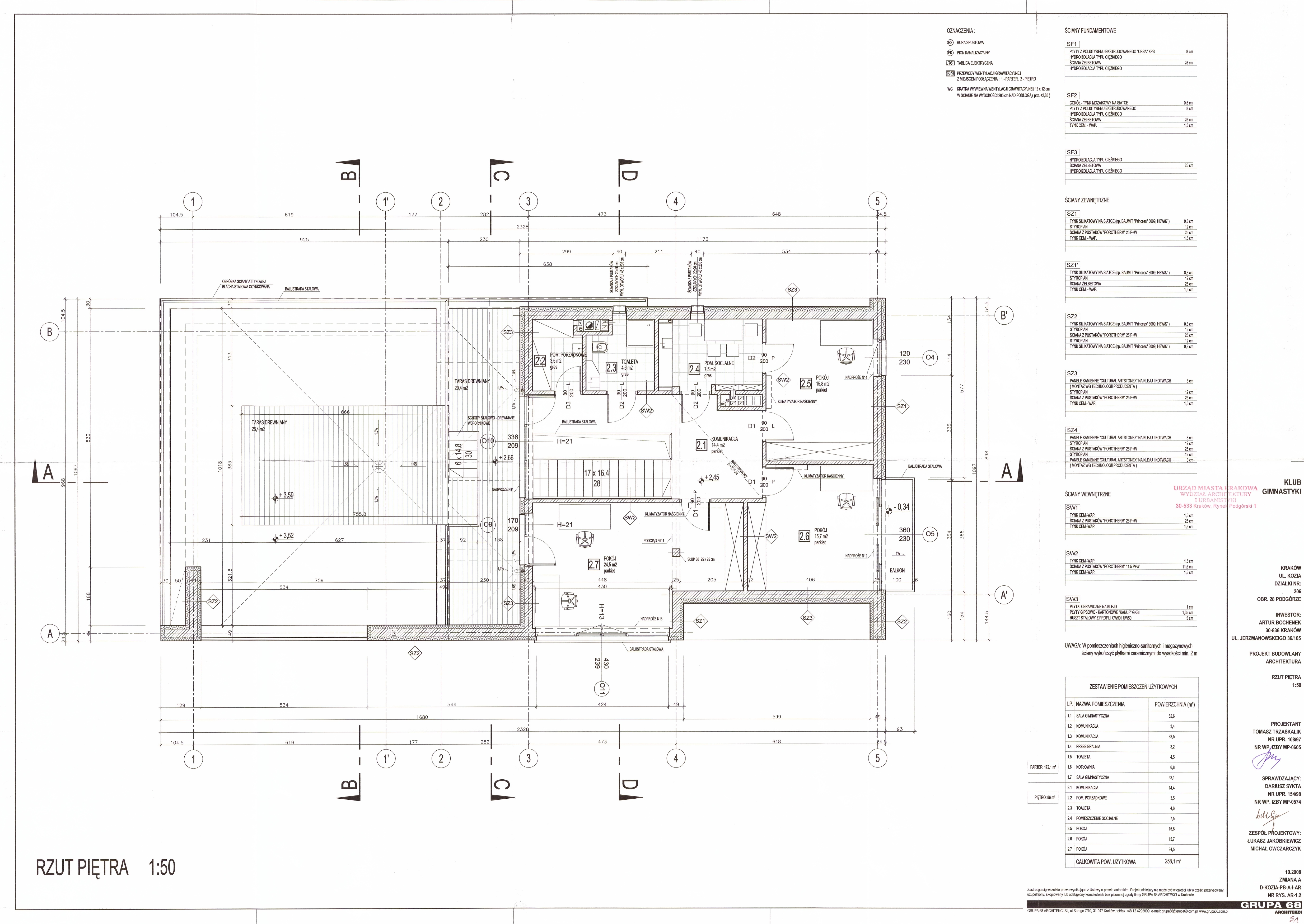
Планування кімнати:

Нерухомість складається з двох просторих поверхів:

Перший поверх: На другому поверсі розташований просторий відкритий простір із центрально розташованими сходами та окремою заскленою кімнатою. На цьому поверсі також розташовані туалет і котельня, що підвищує функціональність простору.

1-й рівень є продовженням стильного відкритого простору, доповненого двома окремими кімнатами, ще одним туалетом, кімнатою, призначеною під ванну кімнату, та міні-кухнею, яка ідеально вписується в сучасний декор.

Особливості та простір на відкритому повітрі:

На території готелю є унікальна 60-метрова тераса з дивовижним видом на озеро Багри, що створює ідеальний простір для відпочинку та милування природою.

Поверхні та технічні параметри об'єкта:

  • Площа землі: 717 м²
  • Площа будівлі: 212 м²
  • Корисна площа: 258,10 м²
  • Площа асфальтованих ділянок: 210,80 м²
  • Біологічно активна площа: 299,50 м²
  • Інтенсивність розвитку: 29,60%
  • Об'єм: 1066 м³
  • Висота будівлі: 5,5 м
  • Розміри (Д х Ш): 23,28 х 10,27 м

Ця унікальна нерухомість – ідеальне рішення для вимогливих клієнтів, які цінують елегантність, комфорт та простір з можливістю індивідуальної адаптації. Це ідеальне місце для життя, роботи або створення унікального мистецького простору.

Будівля

Сучасні технологічні рішення:

  • Система опалення та гарячого водопостачання на основі інноваційного теплового насоса «ґрунт-вода» забезпечує екологічне та ефективне управління енергією.
  • Фанкойли виконують подвійну функцію – вони забезпечують як опалення, так і охолодження, забезпечуючи оптимальний клімат у приміщенні цілий рік.
  • Підігрів підлоги для максимального комфорту та рівномірного розподілу тепла в кімнатах.
  • Сучасні, високопродуктивні вентиляційні установки, що забезпечують належний повітрообмін та покращують якість життя.
  • Сучасні алюмінієві столярні вироби та зовнішні ролети – стильні та функціональні, що забезпечують естетику та кращу тепло- та звукоізоляцію.
  • Система розумного дому Fibaro дозволяє керувати функціями будівлі, адаптуючи їх до потреб користувачів.
  • Система сигналізації Fibaro з професійним моніторингом від Juwentus, що гарантує найвищий рівень безпеки.
  • Система відеозахисту HIK-Vision для постійного моніторингу та повного контролю над простором.
  • Оптоволоконний інтернет для найшвидшого та найнадійнішого з'єднання – ідеально підходить для роботи, розваг та щоденного використання.

Кожна особливість цієї нерухомості була розроблена з урахуванням комфорту, безпеки та передових технологій, щоб створити сучасний, функціональний простір.

Локація

Нерухомість розташована у престижній частині краківського Подгужа, прямо на мальовничому озері Багри, та пропонує надзвичайне поєднання близькості до природи та комфорту міського життя . Розташована на першій береговій лінії, вона забезпечує прямий доступ до піщаного пляжу, прибережної набережної, спортивних майданчиків та сучасного тренажерного залу просто неба. Поруч розташовані численні ресторани, кафе та зони відпочинку, ідеальні для проведення вільного часу. Близькість основних транспортних артерій забезпечує легкий доступ як до центру міста, так і до навколишніх міст.

Оплати

Ціна 5 990 000 злотих

Запрошуємо вас зв'язатися з нами та ознайомитися з цією унікальною резиденцією.

Деталі нерухомості

Ref: 21023
Місто
Мікрорайон
Площа
258 m2
Спальні
3
Ванні кімнати
2
Кількість поверхів
2
Розмір земельної ділянки
717 m2
Останнє оновлення
03-12-2025
Кондиціонер
Балкон
Сад
інтернет

ціна

Ref: 21023
Ціна
5 990 000 PLN
Ціна/m2
23 208 PLN

Ціна 5 990 000 злотих

Комісія Hamilton May сплачується після проведення операції купівлі-продажу квартири та врегулювання всіх необхідних формальностей.

Вас цікавить ця нерухомість?
Домовитись про презентацію

Ми обробляємо ваші дані відповідно до наших Політика конфіденційності

План нерухомості

Сучасна вілла на пляжі Багри - plan

Путівник по мікрорайону Podgórze

Подгуже - новий центр на іншому березі річки

Відкрийте для себе один із районів Кракова, який найшвидше розвивається: від багатоквартирних будинків дев’ятнадцятого століття на Rynek Podgórski до сучасних офісних будівель на кільцевій розв’язці Matecznego.

Відкрийте для себе один із районів Кракова, який найшвидше розвивається: від багатоквартирних будинків дев’ятнадцятого століття на Rynek Podgórski до сучасних офісних будівель на кільцевій розв’язці Matecznego.

You might also be interested in:

Прийняти файли cookie

Дякуємо, що відвідали наш сайт. Ваша конфіденційність є для нас надзвичайно важливою, а безпека даних є нашим пріоритетом. Ми використовуємо файли cookie, щоб налаштувати вміст відповідно до індивідуальних уподобань і надавати послуги вищої якості. Будь ласка, погодьтеся на використання файлів cookie та ознайомтеся з нашою політикою конфіденційності.