Loading...
Hamilton May Logo Hamilton May

Квартира | 42,64 м2 | Близько до центру | Верхній поверх в Унікальній Вежі

[0% КОМІСІЇ]

Ми раді представити на продаж однокімнатну квартиру, розташовану на 5-му поверсі сучасно оздобленого будинку , недалеко від самого центру Варшави, в Унікальній вежі за адресою Гжибовська 49.

Ми пропонуємо різні квартири в рамках цієї інвестиції.

Опис нерухомості

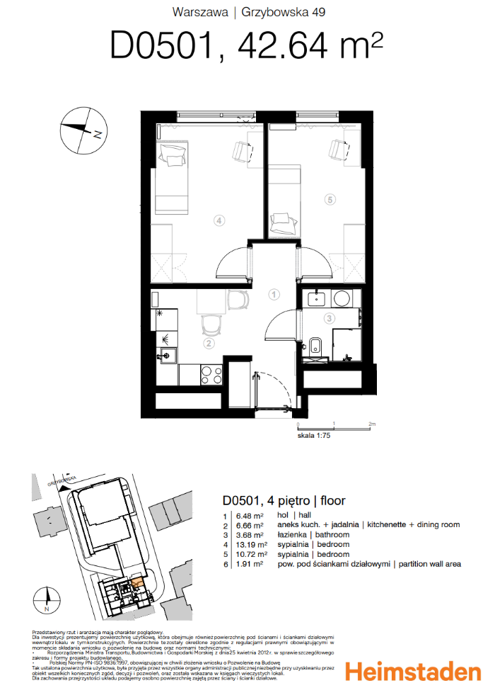
Продається функціональна однокімнатна квартира площею 42,64 м² , мебльована з великою увагою до деталей та повсякденного комфорту. Ідеально підходить для самотніх людей, пар або як інвестиція в оренду.

Планування квартири:

  • кухня з обідньою зоною , обладнана побутовою технікою (холодильник, духовка, індукційна плита, посудомийна машина) та столом зі стільцями
  • комфортна спальня,
  • окрема кімната, яка може слугувати спальнею, кімнатою для гостей або кабінетом,
  • функціональна ванна кімната з душовою кабіною.

Інтер'єр виконаний у світлих тонах, з елегантними акцентами з натурального дерева на підлозі та чорними елементами, що надають простору характеру та стилю. Квартира обладнана вбудованими шафами, що забезпечують достатньо місця для зберігання речей, зберігаючи при цьому відчуття простору.

Будівля

«Unique Tower» – це сучасний житловий комплекс, розташований у самому серці варшавського району Воля – одного з районів столиці, що найшвидше розвивається. 16-поверхова будівля пропонує комфортні одно-, дво- та трикімнатні квартири, всі з кондиціонерами та повністю мебльовані. Деякі квартири мають просторі балкони з панорамним видом на місто. Загальні простори спроектовані з урахуванням комфорту та способу життя мешканців – елегантне лобі зі стійкою реєстрації та цілодобова охорона підвищують щоденний комфорт.

Нерухомість належить Heimstaden, провідній європейській компанії з житлової нерухомості. Група має представництва в Норвегії, Швеції, Данії, Фінляндії, Великій Британії, Німеччині, Нідерландах, Чехії та Польщі. Heimstaden має приблизно 161 000 квартир загальною вартістю близько 30 мільярдів євро. Компанія зосереджується на придбанні, будівництві, продажу та управлінні будівлями на основі найвищих стандартів співпраці з партнерами та клієнтами.

Гамільтон Мей є офіційним партнером Heimstaden з нерухомості.

Локація

Проект розташований у динамічно розвиваючомуся районі Воля, який є визначною пам'яткою столиці та привертає зростаючий інтерес як з боку мешканців, так і з боку інвесторів. Це жвавий район, що пропонує широкий спектр житлових, бізнес- та розважальних можливостей.

У безпосередній близькості розташовані численні кафе, ресторани та пункти обслуговування , що задовольняють потреби кожного мешканця та відвідувача. Воля також є центром сучасної архітектури та культури – поруч розташовані престижні офісні та культурні комплекси, такі як Варшавський пивоварний завод та завод Норбліна , що приваблюють як працівників, так і туристів.

Ще однією перевагою цього розташування є чудове транспортне сполучення – за декілька хвилин ходьби знаходяться трамвайні та автобусні зупинки , а також станції метро Rondo ONZ та Rondo Daszyńskiego , що забезпечують швидкий та зручний доступ до інших районів Варшави.

Оплати

Ціна 1 190 000 злотих + додаткове підземне паркомісце (150 000 злотих)

Щоб отримати додаткову інформацію щодо цієї пропозиції, зверніться до офісу в Гамільтоні, травень.

Це оголошення не є пропозицією у значенні статті 66 Цивільного кодексу Польщі (Kodeks cywilny).

https://heimstaden.com/pl/

Деталі нерухомості

Ref: 22733
Місто
Вулиця
Мікрорайон
Девелопмент
Площа
43 m2
Спальні
1
Ванні кімнати
1
Від центру
2km
Поверх
5
Aдмінкомісія
550 PLN
Кількість поверхів
16
Останнє оновлення
09-03-2026
інтернет
Ліфт
Приватна парковка

ціна

Ref: 22733
Ціна
1 190 000 PLN
Ціна/m2
27 908 PLN

Ціна 1 190 000 злотих + додаткове підземне паркомісце (150 000 злотих)

Вас цікавить ця нерухомість?
Домовитись про презентацію

Ми обробляємо ваші дані відповідно до наших Політика конфіденційності

План нерухомості

Квартира | 42,64 м2 | Близько до центру | Верхній поверх в Унікальній Вежі - plan

Путівник по мікрорайону Wola

Воля - новий столичний центр

Відкрийте для себе район ультрасучасних хмарочосів, який живе в ритмі другої лінії метро.

Відкрийте для себе район ультрасучасних хмарочосів, який живе в ритмі другої лінії метро.

Unique Tower Grzybowska

Development
Development

«Unique Tower» – це сучасний житловий комплекс, розташований у самому серці варшавського району Воля – одного з найшвидше зростаючих районів столиці. 16-поверхова будівля пропонує комфортні одно-, дво- та трикімнатні квартири, всі повністю мебльовані та кондиціоновані. Деякі квартири мають просторі балкони з панорамним видом на місто. Загальні зони спроектовані з урахуванням комфорту та способу життя мешканців – елегантне лобі зі стійкою реєстрації та цілодобова охорона підвищують щоденну зручність. Додатковою перевагою комплексу є його розташування – поруч зі станціями метро Rondo Daszyńskiego та Rondo ONZ. У безпосередній близькості мешканці знайдуть численні ресторани, кафе, пункти обслуговування, а також сучасні офісні та культурні комплекси, такі як Warsawy Warszawskie та Fabryka Norblin. Любителі міського способу життя оцінять близькість до центру Варшави та чудове транспортне сполучення з усіма частинами міста. Власником нерухомості є Heimstaden – провідна європейська компанія, що працює в секторі житлової нерухомості. Група присутня в Норвегії, Швеції, Данії, Фінляндії, Великій Британії, Німеччині, Нідерландах, Чехії та Польщі. Heimstaden має приблизно 161 000 квартир загальною вартістю близько 30 мільярдів євро. Компанія зосереджується на придбанні, будівництві, продажу та управлінні будівлями на основі найвищих стандартів якості у співпраці з партнерами та клієнтами. Hamilton May є офіційним партнером Heimstaden з продажу нерухомості....

You might also be interested in:

Прийняти файли cookie

Дякуємо, що відвідали наш сайт. Ваша конфіденційність є для нас надзвичайно важливою, а безпека даних є нашим пріоритетом. Ми використовуємо файли cookie, щоб налаштувати вміст відповідно до індивідуальних уподобань і надавати послуги вищої якості. Будь ласка, погодьтеся на використання файлів cookie та ознайомтеся з нашою політикою конфіденційності.