Loading...
Hamilton May Logo Hamilton May

Продається простора квартира з балконом в Мокотові

Hamilton May представляє на продаж простору квартиру на сьомому поверсі будинку на вулиці Магазиновій у Мокотові, яка поєднує комфорт із практичним плануванням.

Опис нерухомості

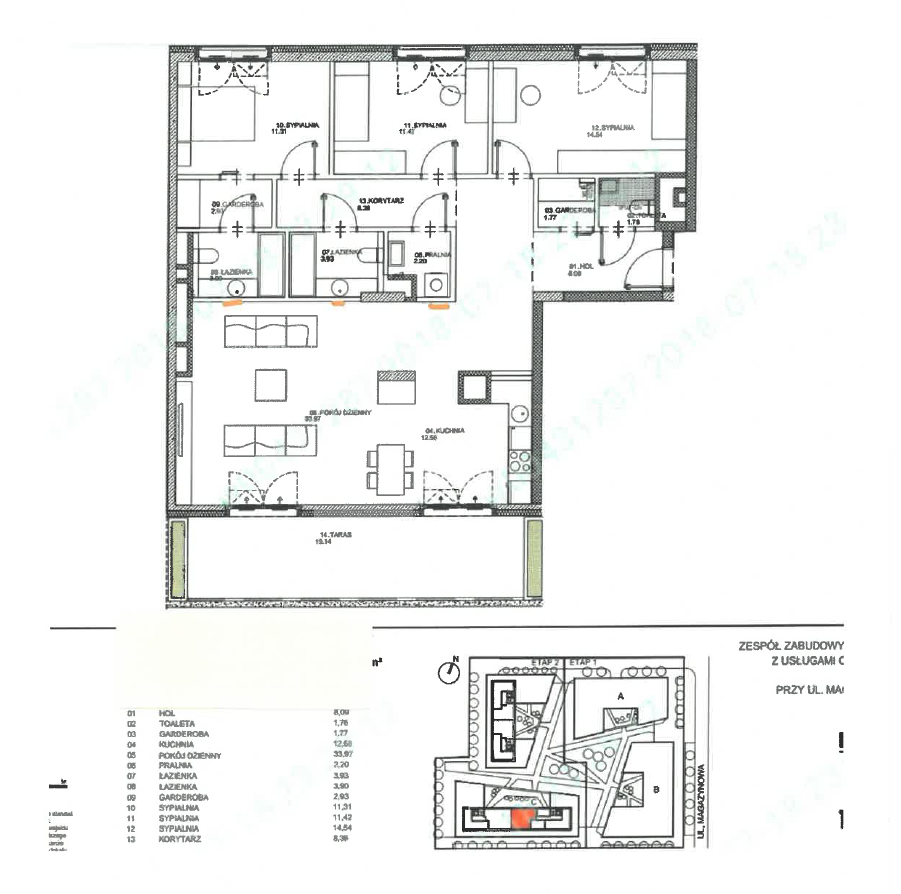
Квартира займає площу 116 м² та включає світлу вітальню з обідньою зоною та балконом, три спальні та дві ванні кімнати. Кухня повністю обладнана побутовою технікою, включаючи індукційну плиту та посудомийну машину. Інтер'єри вирізняються підлогою під дерево та світлими стінами з мінімалістичним дизайном.

  • Балкон з додатковим місцем для відпочинку
  • Три окремі спальні та дві ванні кімнати
  • Повністю обладнана кухня з індукційною плитою та посудомийною машиною
  • Елегантна підлога під дерево по всій території
  • Вітальня з великими вікнами та виходом на балкон

Деякі зображення були покращені візуалізаціями, створеними за допомогою інструментів штучного інтелекту, для представлення потенційного розташування об'єкта нерухомості.

Будівля

Семиповерхова будівля 2016 року зведення має ворота та охорону, є рецепція та цілодобова охорона. Мешканці можуть насолоджуватися просторим внутрішнім патіо з дитячим майданчиком. Будівля обладнана ліфтом та системою відеоспостереження, що створює безпечні та комфортні умови проживання.

  • Цілодобова охорона та стійка реєстрації
  • Ліфт, що обслуговує всі поверхи
  • Закрите патіо з дитячим майданчиком
  • Відеонагляд для посилення безпеки
  • Сучасний, доглянутий дизайн будівлі

Локація

Квартира розташована у добре транспортно сполученій частині Мокотова на вулиці Магазиновій, поруч із трамвайними та автобусними зупинками. Близькість до зелених зон та дитячих майданчиків підходить для сімей. Район пропонує легкий доступ до торгових центрів, послуг та громадського транспорту по всій Варшаві.

Оплати

Ціна 2 260 000 злотих, включаючи складське приміщення + підземне паркомісце (50 000 злотих)

Щоб дізнатися більше або домовитися про перегляд цієї нерухомості, зверніться до Гамільтона Мея.

Деталі нерухомості

Ref: 22697
Місто
Вулиця
Мікрорайон
Девелопмент
Площа
116 m2
Спальні
3
Ванні кімнати
2
Від центру
5km
Поверх
7
Aдмінкомісія
1 000 PLN
Кількість поверхів
7
Останнє оновлення
08-04-2026
Балкон
Ліфт
Охорона/сторож
буфер обміну
Приватна парковка

ціна

Ref: 22697
Ціна
2 260 000 PLN
Ціна/m2
19 483 PLN

Ціна 2 260 000 злотих, включаючи складське приміщення + підземне паркомісце (50 000 злотих)

Комісія Hamilton May сплачується після проведення операції купівлі-продажу квартири та врегулювання всіх необхідних формальностей.

Вас цікавить ця нерухомість?
Домовитись про презентацію

Ми обробляємо ваші дані відповідно до наших Політика конфіденційності

План нерухомості

Продається простора квартира з балконом в Мокотові - plan

Путівник по мікрорайону Mokotów

Мокотув – від кластеру офісних будівель до вілл дипломатів

Один із ключових районів Варшави, де проживає 200 000 жителів. Він пропонує все: від офісних будівель у Служевці, затишних багатоквартирних будинків і колишніх вілл до сучасної житлової архітектури.

Один із ключових районів Варшави, де проживає 200 000 жителів. Він пропонує все: від офісних будівель у Служевці, затишних багатоквартирних будинків і колишніх вілл до сучасної житлової архітектури.

Osiedle Moko

Development
Development

Моко — це чудово розташований і гарно завершений житловий комплекс високого стандарту, який вважається одним із найпрестижніших сімейних комплексів у всьому місті. Моко Моко - місце мрії для сімей з дітьми. Забудова складається з чотирьох 7-поверхових бетонних будинків - вся територія охороняється та оснащена моніторингом. Також тут є всі зручності для людей з обмеженими можливостями. Споруди поселення вишукані та світлі, а також зручно розташовані. Навколишні будівлі низькі, що дає їм багато природного світла. Моко - Розташування Інвестиція знаходиться на вулиці Magazynowa в околицях Ksawerów. особливості місцевості; школи, дитячі садки та медичні заклади, а близькість метро та інших видів громадського транспорту забезпечує зручні транспортні можливості. Мешканці можуть провести час у прилеглих парках або відправитися за покупками в Galeria Mokotów. Моко - Апартаменти Поселення Моко пропонує широкий вибір комфортних і функціональних квартир від 30 до 140 м2 з висотою стелі 2,8 м. Залежно від поверху квартири бувають лоджії або балкони. Апартаменти на верхньому поверсі мають великі тераси, а в помешканнях на першому поверсі є приватні сади. Квартири пропонуються з електропроводкою (проводка, вимикачі), а також обігрівачами, дерев'яними вікнами, оштукатуреними стінами та бетонною підлогою. Загальні відомості Будь ласка, зв'яжіться з Hamilton May, щоб дізнатися про найактуальніший список доступних квартир у представленому комплексі. ...

You might also be interested in:

Прийняти файли cookie

Дякуємо, що відвідали наш сайт. Ваша конфіденційність є для нас надзвичайно важливою, а безпека даних є нашим пріоритетом. Ми використовуємо файли cookie, щоб налаштувати вміст відповідно до індивідуальних уподобань і надавати послуги вищої якості. Будь ласка, погодьтеся на використання файлів cookie та ознайомтеся з нашою політикою конфіденційності.