Loading...
Hamilton May Logo Hamilton May

Біскупін | Чарівний напіввідокремлений будинок 1935 р. | 161,5 м² | Ділянка 388 м²

Гамільтон Мей представляє чарівний напіввідокремлений будинок 1935 року побудови у престижному районі Біскупін з оригінальною дерев'яною підлогою та дверною фурнітурою, що пропонує унікальне поєднання довоєнного характеру та чудового потенціалу для ремонту.

Опис нерухомості

Цей будинок площею 161,5 м² на ділянці площею 388 м² пропонує продумане планування на чотирьох рівнях:

Підвал – 83,4 м²: вітальня, спальня, кухня, коридор, ванна кімната, підсобне приміщення, котельня.

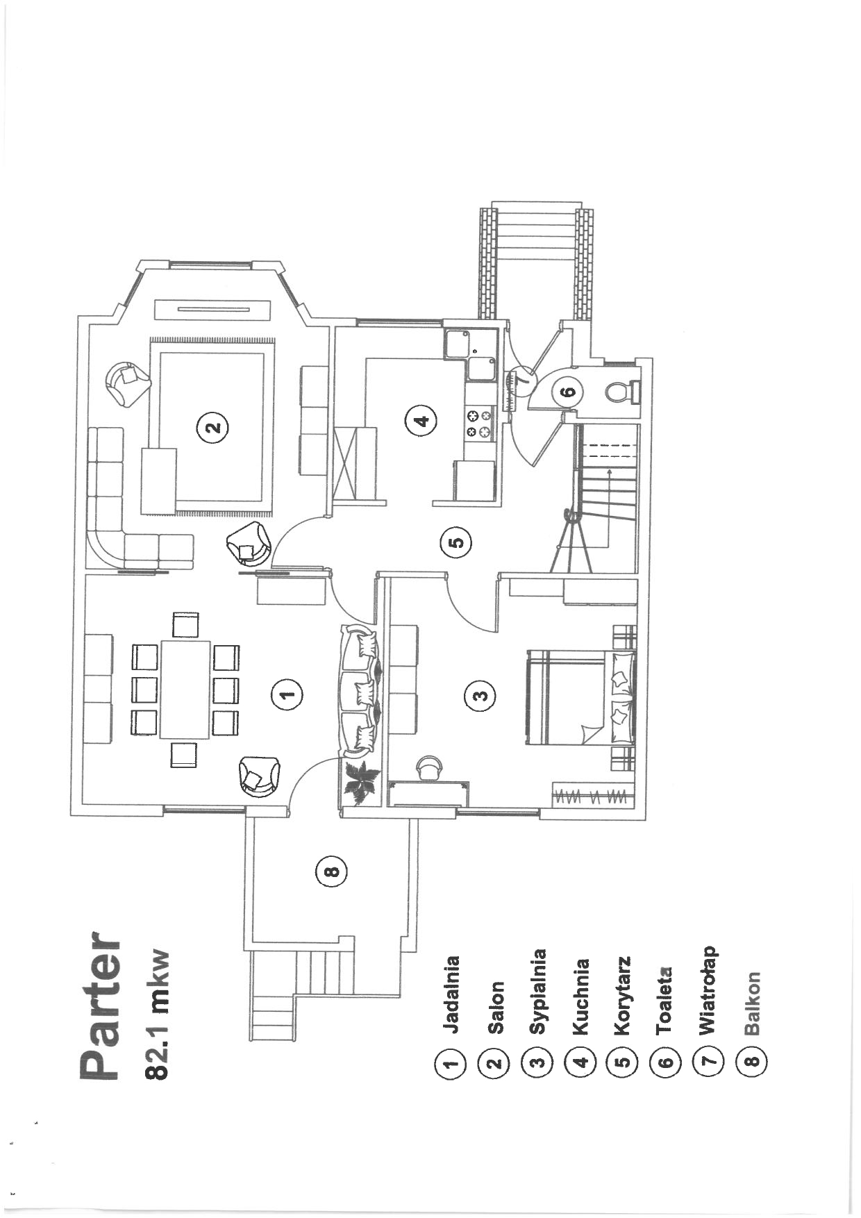
Високий перший поверх – 82,1 м²: простора вітальня з оригінальними розсувними дверима, їдальня, кухня, спальня, гостьовий туалет та коридор.

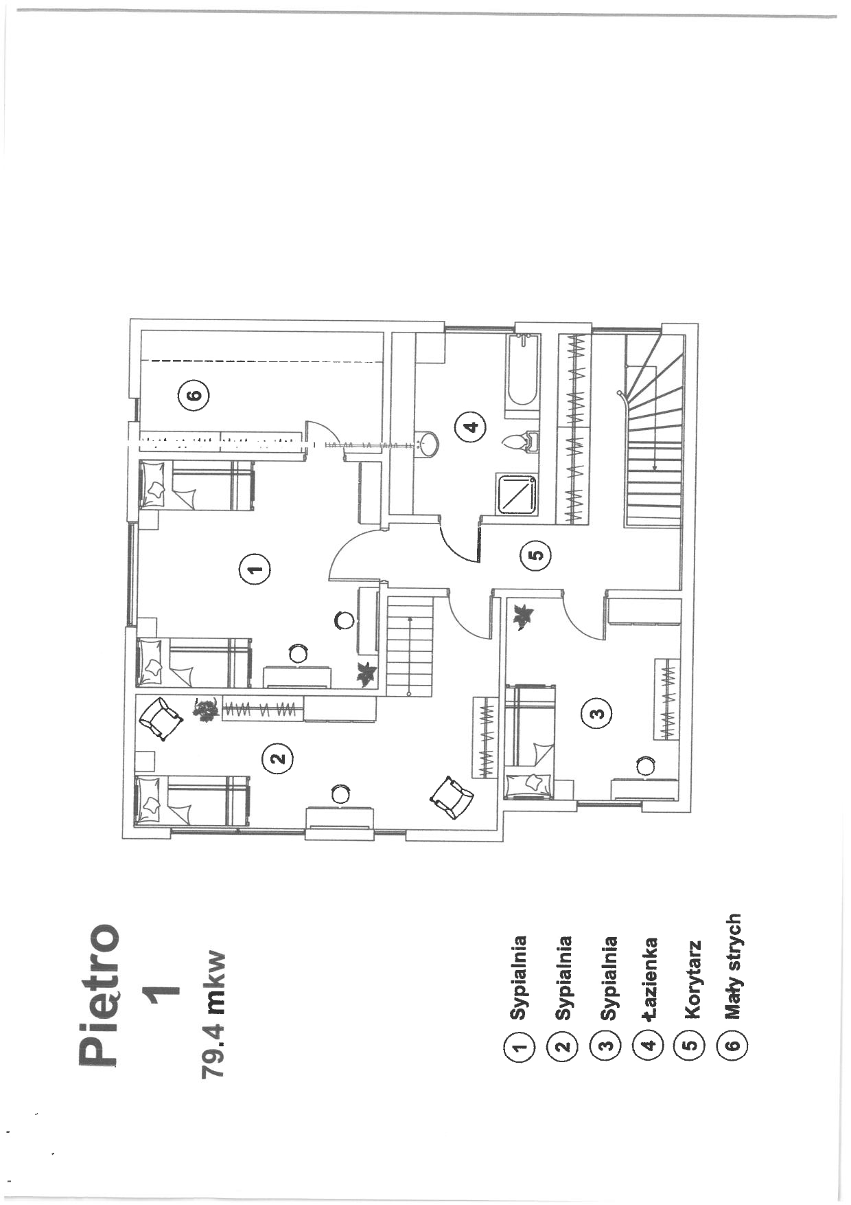
Перший поверх – 79,4 м²: три спальні, гардеробна, ванна кімната з ванною та душем, коридор.

Горище – 35,9 м², готове до адаптації відповідно до вашого власного дизайнерського бачення.

У будівлі збереглося багато оригінальних рис 1935 року, включаючи дерев'яні підлоги та дверні столярні вироби, що створює особлива та тепла атмосфера. Будинок пропонує великий потенціал для комфортного сімейного будинку або інвестиційної нерухомості, зберігаючи при цьому свій довоєнний архітектурний шарм.



Будівля

Напіввідокремлений будинок 1935 року з високими стелями та класичною конструкцією, що зберіг оригінальні деталі, такі як дерев'яні підлоги, дверні рами та стильний фасад. Його міцна конструкція дозволяє сучасну адаптацію інтер'єру, зберігаючи при цьому історичний характер будівліу благородному районі.

Локація

Біскупін – один із найпрестижніших та найзеленіших районів Вроцлава з приватною та спокійною атмосферою, оточений окремими будинками та сусідніми парками та зонами відпочинку. Відмінне розташування громадського транспорту та близькість до центру міста забезпечують зручність, а магазини, школи та інші зручності знаходяться в пішій доступності. Це розташування ідеально поєднує приватність та міське життя.

Оплати

Ціна 2 750 000 злотих

Цей унікальний будинок 1935 року в Біскупіні ідеально підходить для покупців, які цінують довоєнний архітектурний шарм, просторі інтер'єри та чудовий потенціал для ремонту. Завдяки своїм оригінальним рисам та престижному розташуванню, нерухомість ідеально підходить для комфортного сімейного будинку або інвестицій з високим потенціалом.

Зв'яжіться з Гамільтоном Меєм, щоб домовитися про перегляд сьогодні.



Деталі нерухомості

Ref: 22980
Місто
Мікрорайон
Площа
162 m2
Спальні
5
Ванні кімнати
3
Кількість поверхів
2
Розмір земельної ділянки
388 m2
Останнє оновлення
21-05-2026
Кабельне телебачення
Сад
інтернет
Приватна парковка

ціна

Ref: 22980
Ціна
2 750 000 PLN
Ціна/m2
17 028 PLN

Ціна 2 750 000 злотих

Комісія Hamilton May сплачується після проведення операції купівлі-продажу квартири та врегулювання всіх необхідних формальностей.

Вас цікавить ця нерухомість?
Домовитись про презентацію

Ми обробляємо ваші дані відповідно до наших Політика конфіденційності

План нерухомості

Біскупін | Чарівний напіввідокремлений будинок 1935 р. | 161,5 м² | Ділянка 388 м² - plan

Путівник по мікрорайону Biskupin

Біскупін – чарівний міжвоєнний Вроцлав

Модерністичний житловий масив міжвоєнних золотих років.

Модерністичний житловий масив міжвоєнних золотих років.

Прийняти файли cookie

Дякуємо, що відвідали наш сайт. Ваша конфіденційність є для нас надзвичайно важливою, а безпека даних є нашим пріоритетом. Ми використовуємо файли cookie, щоб налаштувати вміст відповідно до індивідуальних уподобань і надавати послуги вищої якості. Будь ласка, погодьтеся на використання файлів cookie та ознайомтеся з нашою політикою конфіденційності.