Loading...
Hamilton May Logo Hamilton May

Унікальна квартира на продаж у Закопане

Виняткова квартира на продаж у Закопане на бульварі Словацькому, Татшанський повіт, що поєднує вишукане альпійське оздоблення з практичним трикімнатним плануванням та балконом з видом на лісисті схили, повністю обладнана сучасною побутовою технікою, швидким інтернетом та продуманим інтер'єром, ідеально підходить для вибагливих покупців.

Опис нерухомості

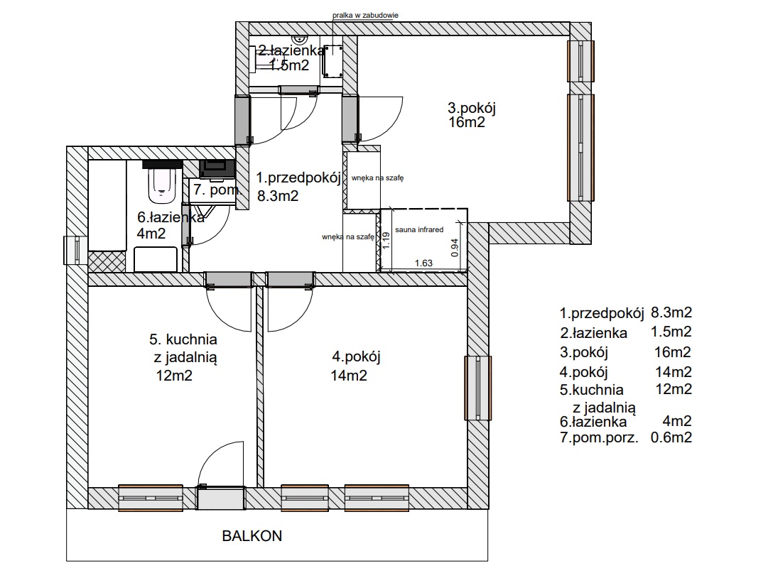
Рідкісна квартира на продаж у Закопане на бульварі Словацькому в Татшанському повіті, з елегантним інтер'єром площею 55 м2, розподіленим на три кімнати з двома спальнями та двома ванними кімнатами. Дворівневе планування передбачає затишну вітальню, високоякісні дубові підлоги та виготовлені на замовлення шафи, вбудований холодильник, посудомийну машину та мікрохвильову піч, балкон з видом на ліс та гори.

  • 55 м2 розподілені на три кімнати
  • Дві спальні та дві ванні кімнати
  • Балкон з видом на ліс та гори
  • Вбудована техніка, включаючи холодильник, посудомийну машину, пральну машину, мікрохвильову піч, газову та індукційну плити
  • Високоякісні дубові підлоги та виготовлені на замовлення шафи з вишуканими творами мистецтва та дизайнерським освітленням

Будівля

Будівля датується 1990 роком, це низькоповерхова двоповерхова споруда, розташована на території охоронюваного закритого маєтку, що пропонує приватність та спокій. Місцеве оздоблення деревом та каменем відповідає альпійським традиціям, ретельне обслуговування, комунальні послуги включають воду, електрику, газ, високошвидкісний інтернет та кабельне телебачення, масштаб сприяє дискретному проживанню поблизу центральних набережних.

  • Побудовано в 1990 році
  • Низькоповерхова двоповерхова будівля
  • Закритий маєток, що забезпечує приватність
  • Повний комплект комунальних послуг, включаючи воду, електрику, газ, інтернет та кабельне телебачення
  • Доглянутий внутрішній дворик та дискретний житловий масив

Локація

Ці апартаменти розташовані у вигідному місці на Словацькому бульварі, за декілька кроків від річкової набережної Закопаного в межах Татшанського повіту, в оточенні лісистих схилів та набережних. За декілька хвилин ходьби можна дістатися до ремісничих магазинів на вулиці Крупувки та станцій канатної дороги, що забезпечує легкий доступ до пішохідних стежок, лижних курортів та вишуканих гірських ресторанів. Вечори насолоджуються свіжим альпійським світлом та чудовою місцевою кухнею неподалік.

Оплати

Ціна 1 375 000 злотих, включаючи наземне паркомісце

Щоб дізнатися більше про цю захопливу пропозицію, зверніться до Гамільтона Мея.

Деталі нерухомості

Ref: 23007
Місто
Вулиця
Мікрорайон
Площа
55 m2
Спальні
2
Ванні кімнати
2
Поверх
Parter
Aдмінкомісія
600 PLN
Кількість поверхів
2
Останнє оновлення
21-04-2026
Балкон
Приватна парковка

ціна

Ref: 23007
Ціна
1 375 000 PLN
Ціна/m2
25 000 PLN

Ціна 1 375 000 злотих, включаючи наземне паркомісце

Комісія Hamilton May сплачується після проведення операції купівлі-продажу квартири та врегулювання всіх необхідних формальностей.

Вас цікавить ця нерухомість?
Домовитись про презентацію

Ми обробляємо ваші дані відповідно до наших Політика конфіденційності

План нерухомості

Унікальна квартира на продаж у Закопане - plan

You might also be interested in:

Прийняти файли cookie

Дякуємо, що відвідали наш сайт. Ваша конфіденційність є для нас надзвичайно важливою, а безпека даних є нашим пріоритетом. Ми використовуємо файли cookie, щоб налаштувати вміст відповідно до індивідуальних уподобань і надавати послуги вищої якості. Будь ласка, погодьтеся на використання файлів cookie та ознайомтеся з нашою політикою конфіденційності.