Loading...
Hamilton May Logo Hamilton May

Світла квартира з видом на Краків, Ного Могильська

Hamilton May представляє на продаж квартиру в житловому комплексі Noho Mogilska на 9-му поверсі з ідеальним видом на весь Краків.

Опис нерухомості

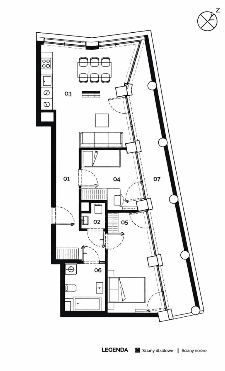
Ця унікальна квартира готова до оздоблення та складається з наступних кімнат:

  • вітальня з міні-кухнею та виходом на балкон площею 15 м² з панорамним видом на Краків,
  • дві спальні,
  • туалет,
  • ванна кімната,
  • зал,
  • паркувальне місце доступне за додаткову плату

Будівля

Інвестиційні переваги: Сучасний дизайн та високоякісні матеріали, цілодобовий моніторинг та охорона, зручне розташування – швидкий доступ до центру міста, близькість до громадського транспорту, магазинів, ресторанів та зелених зон, великі зони загального користування (введення в експлуатацію у червні 2025 року): коворкінг з читальним залом, клубна кімната, ігрова кімната, кінозал, зона фітнесу та йоги, масажний кабінет , дитячий ігровий майданчик, кімната для ремонту, мийка велосипедів, кімната для кур'єрських посилок, дитячий майданчик, майданчик для собак, мийка для собак.

Локація

Апартаменти розташовані у зручно транспортно-зручному районі Кракова. Поруч ви знайдете численні магазини, ресторани, кафе, аптеки, аптеки та інші заклади. Трамвайні та автобусні зупинки знаходяться лише за кілька хвилин ходьби, що забезпечує швидкий доступ до центру міста та інших районів.

Оплати

Ціна 1 400 000 злотих (торг) + підземне паркомісце (100 000 злотих)

Щиро запрошуємо вас

Деталі нерухомості

Ref: 22904
Місто
Вулиця
Мікрорайон
Девелопмент
Площа
59 m2
Спальні
2
Ванні кімнати
2
Від центру
3km
Поверх
9
Aдмінкомісія
1 600 PLN
Кількість поверхів
14
Останнє оновлення
08-05-2026
Кондиціонер
Балкон
Кабельне телебачення
Сад
Ліфт
Охорона/сторож
Приватна парковка

ціна

Ref: 22904
Ціна
1 400 000 PLN
Ціна/m2
23 729 PLN

Ціна 1 400 000 злотих (торг) + підземне паркомісце (100 000 злотих)

Комісія Hamilton May сплачується після проведення операції купівлі-продажу квартири та врегулювання всіх необхідних формальностей.

Вас цікавить ця нерухомість?
Домовитись про презентацію

Ми обробляємо ваші дані відповідно до наших Політика конфіденційності

План нерухомості

City: Kraków Street: Mogilska Region: Prądnik Czerwony Distance to centre: 3.35 km Level: 9 Price: 1400000 PLN Bedrooms: 2 Bathrooms: 2 Size: 59m2 Price/m2: 23729 PLN - plan

Путівник по мікрорайону Prądnik Czerwony

Червоний Праднік – динамічний район поблизу центру міста

Відкрийте для себе район, який поєднує міську енергію зі спокоєм передмістя. Відпочиньте в парку Зачарованих Доріжок та дослідіть сучасні житлові масиви поруч із діловим центром Кракова.

Відкрийте для себе район, який поєднує міську енергію зі спокоєм передмістя. Відпочиньте в парку Зачарованих Доріжок та дослідіть сучасні житлові масиви поруч із діловим центром Кракова.

Młyny Mogilska

City: Kraków
City: Kraków

«Млини Могильська» – це інвестиція, що характеризується унікальною архітектурою, чудовим розташуванням та точною, високоякісною обробкою. Концепція використовує характерний мотив краківських млинів, а весь простір спроектований цілісно. «Млини Могильська» пропонує мешканцям унікальні місця загального користування: клубну кімнату (обладнану кухнею, їдальнею та зоною відпочинку); кінозал, ігрову кімнату (обладнану найновішими консолями, настільними іграми та вінтажними автоматами), йогу, тренування у фітнес-залі, читання у коворкінгу, поєднаному з читальною кімнатою, або хвилинку для себе в кімнаті «Зроби сам». Коворкінг Добре спроектований та обладнаний офіс, доступний для мешканців. Місце, що сприяє знайомству з новими людьми та встановленню добросусідських стосунків. Клубна кімната Зустріч з друзями, сімейне свято чи дитяче свято – це ідеальне місце для особливих подій. Ігрова кімната Задоволення вашої пристрасті, момент відпочинку і навіть повернення в минуле завдяки доступним ретро-консолям у вас під рукою. Кінозал Кінотеатр з ідеальною акустикою, професійним освітленням та зручними диванами. Фітнес, йога та пілатес Піклуйтеся про своє здоров'я та фізичну форму, не виходячи з будівлі. Масажний кабінет Професійний відпочинок та відновлення. Дитяча зона Місце, де діти можуть безпечно проводити час. Кімната «зроби сам» Унікальне місце, щоб розвинути свою пристрасть до DIY або просто зробити дрібний ремонт. Додаткові зручності Автомийка, спа для собак, зарядні станції для електромобілів, паркомісце з розеткою 230 В....

You might also be interested in:

Прийняти файли cookie

Дякуємо, що відвідали наш сайт. Ваша конфіденційність є для нас надзвичайно важливою, а безпека даних є нашим пріоритетом. Ми використовуємо файли cookie, щоб налаштувати вміст відповідно до індивідуальних уподобань і надавати послуги вищої якості. Будь ласка, погодьтеся на використання файлів cookie та ознайомтеся з нашою політикою конфіденційності.