Loading...
Hamilton May Logo Hamilton May

Елегантна, високоякісна трикімнатна квартира у Волі Юстовській

Hamilton May представляє на продаж унікальну квартиру площею 80 кв. м, розташовану в престижному житловому комплексі на вулиці Короля Ядвиги. Ідеальне місце для тих, хто цінує розкіш та сучасний дизайн у цьому культовому районі Кракова.

Опис нерухомості

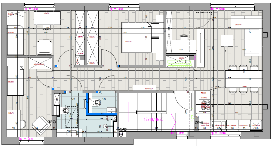
Ці просторі апартаменти на першому поверсі пропонують комфортне планування з чотирьох кімнат, включаючи три окремі спальні . Світлі інтер'єри підкреслюються дерев'яними підлогами, викладеними в модному візерунку «ялинка». Вітальня та кухня відкритого планування оздоблені високоякісними дерев'яними фасадами та елегантною стільницею високої якості. Також є сучасна ванна кімната, окремий туалет та передпокій.

  • 82 м2 корисної площі з оптимальним плануванням кімнат
  • Вітальня, поєднана з кухнею, з високим стандартом оздоблення
  • Три просторі спальні з великою кількістю приватності
  • Велика ванна кімната із сучасною сантехнікою та приглушеним освітленням
  • Окремий кабінет у найбільшій кімнаті

Будівля

Цей затишний житловий комплекс, запланований на 2024 рік, складається лише з 12 квартир у трьох будівлях, розташованих у закритому житловому комплексі. Будівля обладнана тепловим насосом Panasonic, системою підігріву підлоги по всій квартирі, рекуперацією тепла з можливістю охолодження та кондиціонером. Будівля має мінімалістичний білий фасад. У комплексі є система контролю доступу, а весь комплекс спроектовано з урахуванням комфорту та безпеки мешканців. Будівля має лише два поверхи, що посилює відчуття затишку в усьому просторі.

Локація

Престижне розташування у Звежинці, на вулиці Короля Ядвіги, гарантує спокій та комфорт . Квартира розташована поруч із зеленими зонами, але водночас недалеко від центру міста. Район багатий на кафе, ресторани та розкішні бутики. Відмінний доступ до громадського транспорту додає житлу функціональності та комфорту.

Оплати

Ціна 1 650 000 злотих + 2 паркомісця на відкритому повітрі (100 000 злотих)

Без податку PCC (купівля на первинному ринку – ПДВ 8% включено у ціну)

Ми закликаємо зацікавлених сторін зв'язатися з компанією Hamilton May, щоб домовитися про перегляд цієї унікальної нерухомості.

Деталі нерухомості

Ref: 22429
Місто
Вулиця
Мікрорайон
Площа
82 m2
Спальні
3
Ванні кімнати
1
Від центру
6km
Поверх
1
Aдмінкомісія
600 PLN
дата оновлення
05-01-2026
інтернет
Приватна парковка

ціна

Ref: 22429
Ціна
1 650 000 PLN
Ціна/m2
20 122 PLN

Ціна 1 650 000 злотих + 2 паркомісця на відкритому повітрі (100 000 злотих)

Комісія Hamilton May сплачується після проведення операції купівлі-продажу квартири та врегулювання всіх необхідних формальностей.

Вас цікавить ця нерухомість?
Домовитись про презентацію

Зарезервовано

Цю нерухомість зарезервовано. Під час надсилання запиту, будь ласка, пам'ятайте, що вона може бути продана.

Ми обробляємо ваші дані відповідно до наших Політика конфіденційності

План нерухомості

Елегантна, високоякісна трикімнатна квартира у Волі Юстовській - plan

Путівник по мікрорайону Wola Justowska

Wola Justowska - престижний односімейний район

Відкрийте для себе вілли та будинки, оточені зеленню Вольського лісу, і подивіться на Краків з висоти кургану Пілсудського.

Відкрийте для себе вілли та будинки, оточені зеленню Вольського лісу, і подивіться на Краків з висоти кургану Пілсудського.

You might also be interested in:

Прийняти файли cookie

Дякуємо, що відвідали наш сайт. Ваша конфіденційність є для нас надзвичайно важливою, а безпека даних є нашим пріоритетом. Ми використовуємо файли cookie, щоб налаштувати вміст відповідно до індивідуальних уподобань і надавати послуги вищої якості. Будь ласка, погодьтеся на використання файлів cookie та ознайомтеся з нашою політикою конфіденційності.